ЖК «Румянцево Парк»
Что Вам нужно знать о ЖК «Румянцево Парк»
ПЛАНЫ
Появление ЖК «Румянцево парк» было весьма ожидаемым событием с тех пор, как осенью 2016 года в СМИ прошла новость о том, что некое ООО «Одиннадцатый участок» собирается застраивать территорию 17,7 га в районе деревни Румянцево в поселении Московский НАО Москвы. 17.05.2017 было получено разрешение на строительство, в котором в качестве Застройщика фигурировало ООО «Лексион Девелопмент». Три жилых дома, два детских садика и школа, которые появятся тут к 2023 году, будут вводиться в эксплуатацию по следующему графику:
к.1: 21 секция, переменная этажность от 13 до 22 этажей, 1792 квартиры, 756 м/м, 942 кладовые – РВЭ получено во II квартале 2021 года.
к.2: 8 секций, переменная этажность от 17 до 22 этажей, 676 квартир, 263 м/м – завершение строительства в III квартале 2021 года.
к.3: 21 секция, переменная этажность от 13 до 22 этажей, 1778 квартир, 729 м/м, 1070 кладовых – завершение строительства во IV квартале 2022 года.
На территории жилого комплекса проектом планировки предусмотрено размещение 2 детских садов на 200 мест каждый, а также школа на 1000 мест со стадионом, которые будут построены по яркому индивидуальному проекту в соответствии с самыми передовыми технологиями и стандартами.
РАСПОЛОЖЕНИЕ
З км от МКАД по московским меркам не являются значимым расстоянием, для автомобилистов это не будет проблемой. До станции метро «Румянцево» можно прогуляться пешком,
до «Саларьево» легче доехать на общественном транспорте:
Чтобы оценить ближайшее (и не только) окружение Комплекса, можно воспользоваться вкладкой «аэрофотосъемка», открыв раздел «Галерея» на официальном сайте ЖК «Румянцево Парк». В трехстах метрах к северу расположена строительная площадка ЖК «Позитив»:
На северо-западе в массиве жилых корпусов Солнцево легко просматриваются ЖК «Лучи»:
В далекой северо-восточной перспективе можно узреть сакральные силуэты здания МГУ и кучку небоскребов Москва Сити:
На расстоянии чуть более одного километра к югу от Комплекса стоят несколько готовых корпусов «Саларьево Парк»:
Присмотревшись к нему внимательно, можно смело процитировать отрывок из «Маленьких трагедий»:
Фауст: Что там белеет? Говори.
Мефистофель: Корабль испанский трехмачтовый, пристать в Голландию готовый…
Нет, конечно, никакой это ни корабль, а полигон ТБО Саларьево, который в народе давно окрестили КУЧЕЙ. По этому поводу переживать не стоит – помойка находится в процессе рекультвации, которая должна завершиться задолго до того, как соседние ЖК будут введены в эксплуатацию. Так что, ни маленькой, ни большой трагедией эта «куча» уже не является.
КОНСТРУКТИВ
Все три монолитно-каркасных корпуса имеют на первых этажах встроено-пристроенные помещения коммерческого и общественного назначения и объединяются общим двухуровневым подземным паркингом с мойкой и шиномонтажом. Фасады кажутся простыми до той поры, пока не получится рассмотреть их поближе (отсюда и вытекают необычные планировочные решения, которые будут рассмотрены ниже):
Территория будет находиться под видеонаблюдением, въезд в паркинг и вход во двор возможен только со смарт-картой. Во всех домах, помимо сквозного прохода через входные группы секций, через каждые 100 метров будут расположены пешеходные арки. В секциях высотой до 16 этажей устанавливаются один пассажирский и один грузопассажирский лифт OTIS, в секциях этажностью в 17 и выше – два пассажирских и один грузопассажирский. Входные группы должны получить высококачественную отделку:
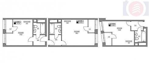
ПЛАНИРОВКИ
Межкомнатные перегородки в квартирах не устанавливаются, качественная металлическая дверь, по заверениям Застройщика, замены не потребует. Дизайн проект от архитектурного бюро «Сретенка» покупатели квартир в «Румянцево парк» получат в подарок.
Высота потолков от чернового пола составляет 2,92 м. Площадь лоджий указана с учетом коэффициента 0,5. «Неучтенный» метр летних площадей будет особенно полезен студиям, обладающим усредненными характеристиками для данного типа жилья – неприлично маленьких или запредельно больших вариантов здесь нет. Некоторое разнообразие вносит отход от привычных прямоугольных форм в секциях 12, 13, 14 и 16 корпуса №1:
Для тех покупателей, которые на дух не переваривают скошенные стены, предназначены однокомнатные квартиры в классических планировочных решениях, отличающихся возможностью организации подсобного помещения. На стыке между авангардом и классикой находятся угловые однушки в секциях 4 и 6 первого корпуса:
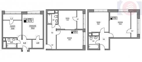
Тем покупателям, которые не прочь поэкспериментировать, скучно здесь не будет:
Линейные двухкомнатные квартиры, как правило, не имеют больших кухонь, угловые варианты от этого недостатка избавлены:
Без планировочных решений с выгнуто-вогнутыми наружными стенами здесь не обошлось:
Распашные планировки тут не редкость, из некоторых можно попробовать пострелять:
Классические трехкомнатные квартиры представлены исключительно в распашном виде. Планировки т.н. евро-трешек выглядят небесспорно, но и небезынтересно:
Планировки четырехкомнатных квартир Застройщик демонстрирует только в «европейском» обличье по причине того, что их площади не так уж и велики:
СХЕМА ПОКУПКИ
До того момента, пока непосредственно в ЖК «Румянцево Парк» не открылся офис продаж, Лексион принимал клиентов только в центральном офисе на Большой Татарской д.13, стр. 1. С мая получить консультацию и приобрести квартиру можно еще и на ул. Родниковая рядом со стройплощадкой.
Понравившуюся квартиру можно бесплатно забронировать сроком до трех дней. Регистрация договора участия в долевом строительстве будет для покупателя бесплатной. Беспроцентная рассрочка на 6 месяцев предоставляется при первоначальном взносе в размере 70% от стоимости квартиры. При взносе 50% рассрочка будет действовать 12 месяцев, но при этом на остаток начисляется 12% годовых. Ипотечные программы предоставляются банками:
СКИДКИ В ГОТОВОМ ДОМЕ ДО 8 %
МАШИНЕ ТОЖЕ НУЖЕН ДОМ
Звони и получи
дополнительную скидку
Готовый Дом
Строительство Дома № 1 завершено и он введен в эксплуатацию.
В продаже еще остаются последние квартиры! Ключи от них можно получить прямо в день оплаты!
О жилом комплексе
Жилой комплекс «Румянцево-Парк» располагается в 3 километрах от МКАД по Киевскому шоссе и в 5 минутах езды от станции метро Саларьево.
Состоит из 3 домов переменной этажности от 13 до 22 этажей.
Строительство завершено, дом введен в эксплуатацию.
Ключи от квартиры можно получить в день оплаты!
Выдача ключей не позднее 31.12.2021 г.
Выдача ключей не позднее 31.03.2023 г.
Входные группы
Премиальные входные группы выполнены по индивидуальному дизайн-проекту от студии DBA-GROUP.
В главных лобби ЖК «Румянцево-Парк» с высотой потолков до 4 м представлен красивый, сдержанный и дорогой интерьер.
В отделке используются качественные и экологически чистые материалы, что полностью соответствует всем технологическим стандартам. В отделке входных групп применяются два вида плитки от известных итальянских фабрик.
В интерьере входных групп уделено большое внимание освещению. В дизайне использованы подвесные светильники в форме шара, а также дизайнерская матовая белая люстра BINGO диаметром в 1330 мм
В зоне отдыха и ожидания расположены мягкие кресла изумрудного цвета, между которыми установлен миниатюрный кофейный столик, выполненный из натурального камня цвета графит.
Внутренний двор
В первом доме основным элементом является двухярусный деревянный мост с ротондой и гамаками, который простирается через весь двор.
Во втором доме превалируют разноуровневые тропы из различного покрытия.
На территории третьего дома акцент сделан на водном игровом оборудовании.
В ЖК «Румянцево-Парк» используется детское игровое оборудование немецкой компании Richter.
Ландшафтный парк
В южной части комплекса размещается ландшафтный парк, который разделяется на две большие зоны – активную с наполнением различными площадками и тихую прогулочную зону со множеством разнообразных растений. Соединены зоны между собой общим бульваром с выделенными местами для отдыха.
Помимо детских площадок и прогулочных зон в ландшафтном парке вы найдете площадки для выгула собак и домашних животных, зона workout, барбекю и велодорожки.



