ЖК «Люберцы Парк»
Что Вам нужно знать о ЖК «Люберцы Парк»
О ПРОЕКТЕ
ЖК «Люберцы парк» действительно находится рядом с небольшим городским Наташинским парком, в котором к тому же есть пара одноименных прудов. В Люберцах есть места и получше, и похуже, что касается и расстояния до метро, но в данном случае следует признать, что пешая прогулка до станции «Лермонтовский проспект» для кого-то может показаться довольно утомительной:
До «Лухмановской» или «ул. Дмитриевского» добираться будет несколько проще и чуть быстрее.
Комплекс состоит из 10 панельных корпусов:
к.1: ПИК-2, 7 секций, 14-25 этажей, 1 228 квартир, 432 кладовые, РВЭ получено в III квартале 2020 года, выдача ключей должна состояться до конца декабря 2020 года.
к.4: ПИК-3, 25-этажная башня, 312 квартир, 56 кладовых, РВЭ получено в IV квартале 2020 года, выдача ключей до конца февраля 2021 года.
к.5: ПИК-3, 25-этажная башня, 288 квартир, 55 кладовых, РВЭ получено в IV квартале 2020 года, выдача ключей до конца февраля 2021 года.
к.6 : ПИК-3, 25-этажная башня, 288 квартир, 49 кладовых, получение РВЭ ожидается в III квартале 2021 года, выдача ключей до конца декабря 2021 года.
к.7 : ПИК-3, 25-этажная башня, 312 квартир, 45 кладовых, получение РВЭожидается в III квартале 2021 года, выдача ключей до конца декабря 2021 года.
к.2 : ПИК-3, 25-этажная башня, 288 квартир, 50 кладовых, получение РВЭ ожидается в I квартале 2022 года.
к.3 : ПИК-3, 25-этажная башня, 288 квартир, 55 кладовых, получение РВЭ ожидается в I квартале 2022 года.
к.9: ПИК-3, 25-этажная башня, 288 квартир, 55 кладовых, получение РВЭ ожидается в IV квартале 2022 года.
к.10: ПИК-3, 25-этажная башня, 312 квартир, 56 кладовых, получение РВЭ ожидается в III квартале 2022 года.
к.8: ПИК-2, 7 секций, 14-25 этажей, 1 228 квартир, 429 кладовых, получение РВЭ ожидается в I квартале 2023 года.
Застройщик планирует построить здесь школу на 1 170 мест (III квартал 2022 года), 2 детских сада: 1 – 220 мест (IV квартал 2020 года), 2 – 350 мест (IV квартал 2022 года), поликлинику на 155 посещений в смену (III квартал 2021 года) и два многоуровневых наземных паркинга на 926 и 776 м/м, соответственно (сроки строительства неизвестны).
Квартиры в комплексе продаются со стандартной ПИКовской отделкой, образцы которой официальный сайт ЖК «Люберцы парк» традиционно демонстрирует в самом лучшем виде, хотя по отзывам покупателей квартир в прочих проектах компании, реалии, порой, оказываются несколько иными.
ПЛАНИРОВКИ
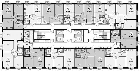
Многосекционные корпуса принадлежат к серии ПИК-2, а корпуса башенного типа относятся к серии ПИК-3. По словам продавцов, отличие этих серий заключается в большей вариативности планировочных решений в домах ПИК-3. Бесспорно одно – в новой серии человейников от ГК ПИК на лестничных клетках располагается рекордно большое количество квартир, и в этом плане ЖК «Люберцы парк» действительно задает новую планку в эконом классе. 4 лифта в 25 этажных домах – это просто замечательно, 13 квартир на этаже – это реальная общага:
В этом плане ситуация в корпусах ПИК-2 выглядит столь же печально. В 25-этажных секциях квартир на этаже будет 12, но мудрые планировщики разместили здесь всего три лифта, что выглядит просто форменным издевательством:
В 14-этажных секциях ПИК кастрировал еще один лифт, установив следующие нормы для количества квартир на этаже: их может быть 10:
Для площадей студий характерен плавный рост их площади от 19,8 до 25,3 кв. м (в башнях ПИК-3 альтернативы самым маленьким вариантам не существует – такая вот интересная вариативность)
и далее до 28,8 кв. м:
В самых маленьких и самых больших однокомнатных квартирах размеры кухни и комнаты отличаются ненамного:
Остальные однокомнатные квартиры в той или иной степени можно считать «евро-двушками»:
В башнях ПИК-3 выбор двухкомнатных квартир ограничивается одним угловым и одним линейным планировочным решением (линейки при этом могут иметь очень даже приличный метраж):
В многосекционном корпусе можно получить весьма скромных размеров «евро-двушку»,
среднюю по площади квартиру с двумя изолированными комнатами,
или двухкомнатную квартиру с претензией на евро-трехкомнатность:
Небольшие трехкомнатные квартиры в башнях обладают относительно небольшими кухнями. В 90-метровых трешках кухня тянет на полноценную кухню-гостиную, а четырехкомнатные квартиры являются настоящим украшением всего ЖК «Люберцы парк»:
Трехкомнатные квартиры в многосекционном корпусе ПИК-2 вызывают смешанные чувства: с одной стороны, метров в них мало, комнатушки выглядят как клетушки, с другой стороны, какой-никакой функционал здесь все же присутствует. 80-метровые трешки-распашонки, безусловно, смотрятся намного выигрышнее:
СХЕМА ПОКУПКИ
Офис продаж находится в Люберцах на улице 8 марта вблизи дома №16 и работает он с 9:00 до 21:00 с понедельника по воскресенье
В случае если покупатель согласен на онлайн-регистрацию договора участия в долевом строительстве, ему понадобится пройти оформление электронной цифровой подписи и предоставить нотариально заверенные заявления относительно его брачного статуса. Помимо услуг нотариуса, нужно будет оплатить открытие аккредитивного счета в указанном застройщиком банке (это будет либо банк ВТБ, либо Сбербанк). Сама же государственная регистрация ДДУ дополнительных трат не потребует.
Если покупатель желает действовать по старинке, то за услуги по сопровождению регистрации ДДУ он будет должен заплатить 20 000 рублей. С помощью продавца анкету на получение ипотечного кредита можно подать сразу в несколько аккредитовавших комплекс банков:
ЖК Люберцы Парк | ГК ПИК
Группа создана для свободного общения и обмена информацией будущими жителями ЖК Люберцы Парк, г. Люберцы
Принимайте участие в наполнении группы контентом, фотографии, записи, документы, новости. Нашим соседям интересно все!
Публикация рекламных объявлений без согласования с администрацией сообщества запрещена.
Жанна Крылова запись закреплена
Олеся Инновация запись закреплена
Высокий процент по ипотеке? Знаем, как снизить!
Центр ИННОВАЦИЯ занимается рефинансированием ипотечного кредита по низким ставкам. В сотрудничестве более 10 банков! При обращении вы сможете:
— самостоятельно воспользоваться калькулятором для расчета выгоды рефинансирования
Показать полностью.
— снизить ставку до 7,75% (по семейной ипотеке до 5%!),
— бесплатно рефинансировать кредит – затраты клиента только на оценку для нового банка,
— сэкономить на страховании – сотрудничаем с аккредитованными страховыми компаниями,
ЖК Люберцы парк в Московской области
Выбор квартиры
*Реальное наличие вариантов и цен может отличаться, актуальную информацию уточняйте у специалиста по недвижимости.
**Информация о минимальной ставке по ипотеке может отличаться в зависимости от дополнительных условий.
Предлагаем купить квартиру в жилом комплексе Люберцы парк в Москве от застройщика ПИК через нашу федеральную риэлторскую компанию «Этажи». Звоните, и специалист по недвижимости расскажет вам подробнее об объекте и назначит удобное время просмотра.
Ассортимент недвижимости
В продаже имеется 1 объектов, стоимостью от 8 700 000 руб.: выбирайте подходящий вариант на сайте. Просматривайте планировки и цены в ЖК Люберцы парк. Мы добавили фото, подробное описание объекта и его главные характеристики. Поэтому, вы легко найдете оптимальное жилье.
Почему стоит обратиться к нам
Сколько стоит жилье
Продажа квартир по ценам застройщика ПИК реализована на нашем сайте: вы не платите за работу риэлтора. Стоимость недвижимости зависит от этажности, планировки, общей площади и ряда других факторов.
Изучайте ЖК Люберцы парк в Москве на официальном сайте компании «Этажи» или позвоните риэлтору, чтобы он проконсультировал вас.
Продажа квартир в ЖК «Люберцы парк»
Жилой комплекс «Люберцы парк»
Цены на квартиры в ЖК «Люберцы парк» на 30 сентября
| Студия | 19.00 м 2 | от 3 014 000 руб. |
| 1-комн | 33.00 м 2 | от 4 108 680 руб. |
| 2-комн | 35.00 м 2 | от 4 625 360 руб. |
| 3-комн | 64.00 м 2 | от 6 457 550 руб. |
| 4-комн | 115.00 м 2 | от 10 586 880 руб. |
Цены указаны в российских рублях и носят справочный характер
Расcчитайте ипотеку
Ежемесячный платеж: пока не известно
Расчет ипотеки и платежей является примерным и носит информационный характер.
Проектная декларация на рекламируемом сайте.
Реклама. Проектная декларация на рекламируемом сайте.
Планировки квартир
О жилом комплексе «Люберцы парк»
Жилой комплекс «Люберцы парк» — квартиры с отделкой в Люберцах у Наташинского парка. Развитая инфраструктура района. 4 км от МКАД. 15 минут пешком до железнодорожной станции.
Проект комплексной застройки ЖК «Люберцы парк» реализует Группа «ПИК». В Люберцах, по соседству с Наташинским парком планируется построить 2 жилых блока переменной этажности, 8 жилых домов башенного типа, а также 2 детсада, школу, многоуровневые паркинги.
Дома индустриальной серии ПИК2 отличаются оригинальными яркими фасадами, фактуру которым придают разноцветные корзины для внешних блоков кондиционеров. Квартальная застройка позволяет организовать приватный и безопасный двор-парк. Вход в дома осуществляется через просторные отделанные по авторскому проекту подъезды, расположенные на уровне земли. Вход возможен с обеих сторон здания.
В ЖК «Люберцы парк» продаются квартиры площадью от 19.8 до 80.1 кв. м. У покупателей есть большой выбор планировочных решений: от уютных квартир-студий до просторных трёхкомнатных с 17-метровой кухней и гардеробной. Во всех квартирах застройщик выполняет отделочные работы, выбирая высококачественный ламинат, напольную и настенную плитку, обои, плинтусы, карнизы и другие материалы в нейтральной цветовой гамме. Покупатели квартир избавлены от хлопот по ремонту и могут создавать интерьер любого стиля.
На подземном уровне строящихся домов разместились хозяйственные внеквартирные кладовые, проектируется многоуровневый паркинг.











